Deep Surface - UTS hoarding artwork

This public art installation titled 'Deep Surface' is conceptually focussed on illusions of depth and thresholds of perception. The use of visual distortion is employed as a device to represent the repeated distortion of local histories to suit emerging contexts and new audiences.

Meanings in the work are deliberately ambiguous, and further transfigured dependant on your perspective or position in space and time. 

INSTALLATION DETAIL

INSTALLATION DETAIL

The UTS Masterplan process is a means of re-branding the University - the building program itself is a brand. To this end we propose a unifying framework through a single bold colour.

Construction hoarding are thin yet they can represent deeper aspirations of the University. Through a series of optical illusions and infomatic interventions the veneer of plywood is manipulated to become a deep surface.

Navigating the campus is akin to navigating the city. A series of moments and movements - experiences at various distances and speeds.

Our proposal amplifies the experience of the pedestrian; the pedestrian in motion and the pedestrian at rest. Each event is a curated installation/art-work that accentuates the unifying idea of deep surface.

Large-scaled 'anamorphic' text are easily read from specific viewpoints yet distorted beyond recognition from other angles. Each single word is a distillation of a historically significant event, specific place or local character once found in the Ultimo area.

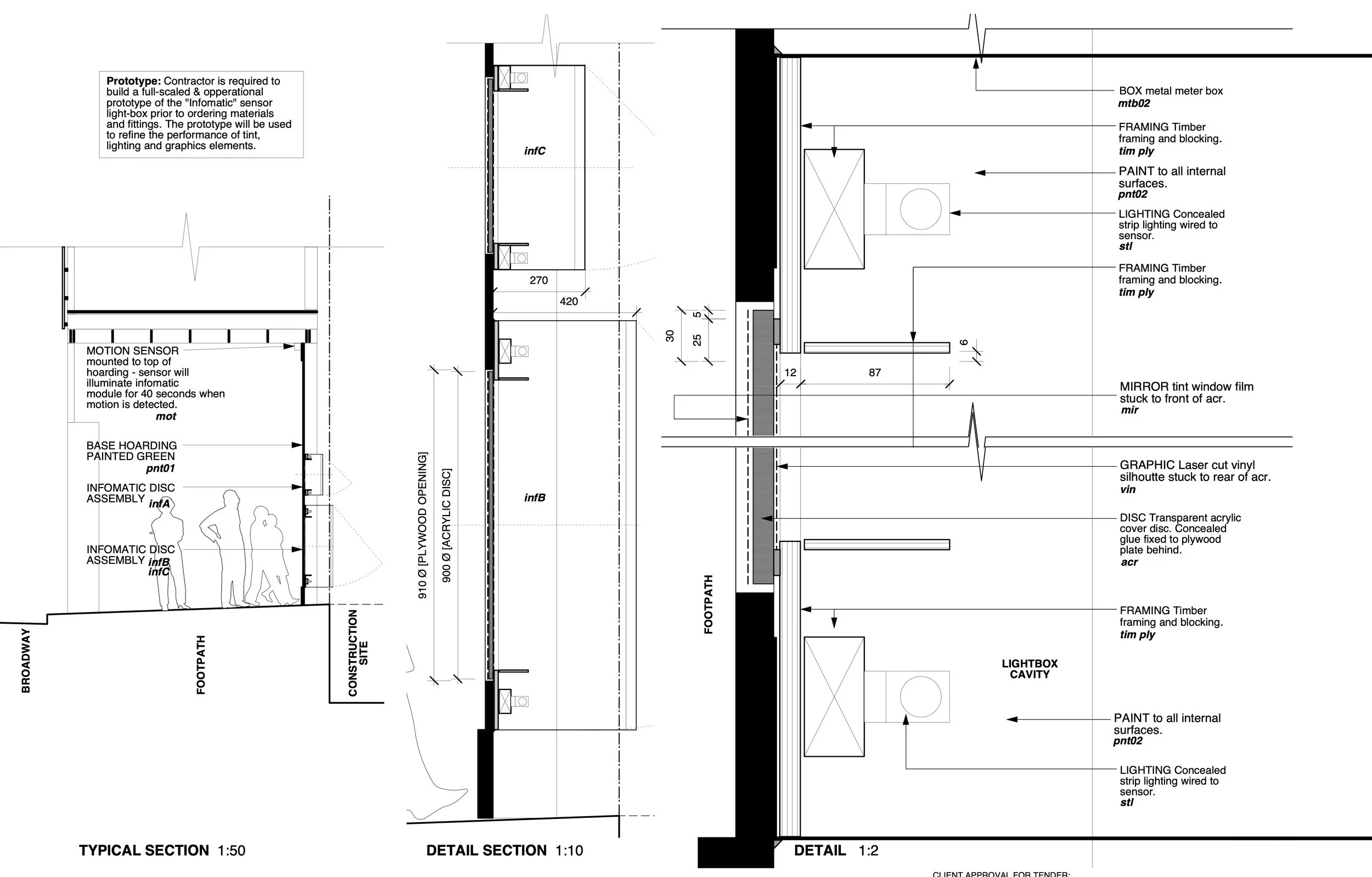
The mirrored 'infomatic' discs give the illusion of depth and activity in the space beyond the construction hoarding. By day they amplify the frantic activity of the city in a taught, seamless constellation. By night a series of movement sensors trigger back-lighting that illuminates human scaled sub-clusters of discs from behind. The glowing light of each disk reveals an intimate graphic silhouette through the one-way mirror.

It is hoped that in time, regular passers-by will develop their own connections between different parts of the work, thereby forging the next iteration of yesterday's history.

INSTALLATION DETAIL

CONSTRUCTION DOCUMENTATION

URBAN ENSEMBLE

ARTWORK CONCEPTS

Movements: Linear events play upon the idea of movement thru optical illusion using moire effects, anamorphic annotations, and op-art.

Moments: Points where the pedestrian slows down, where more intense engagement with surface is possible, an opportunity for information exchange.

 

Project: Deep Surface - UTS public art hoarding installation
Type: Public art, art installation
Location: Broadway, NSW
Client: University of Technology Sydney
Year: 2012
Services: SK, DD, CD and CN
Team: A DRAW project - Adam Russell, Nick Sargent
Project code: 1010

Previous
Previous

SydneyCentral Strategic Plan

Next
Next

The Mandolong